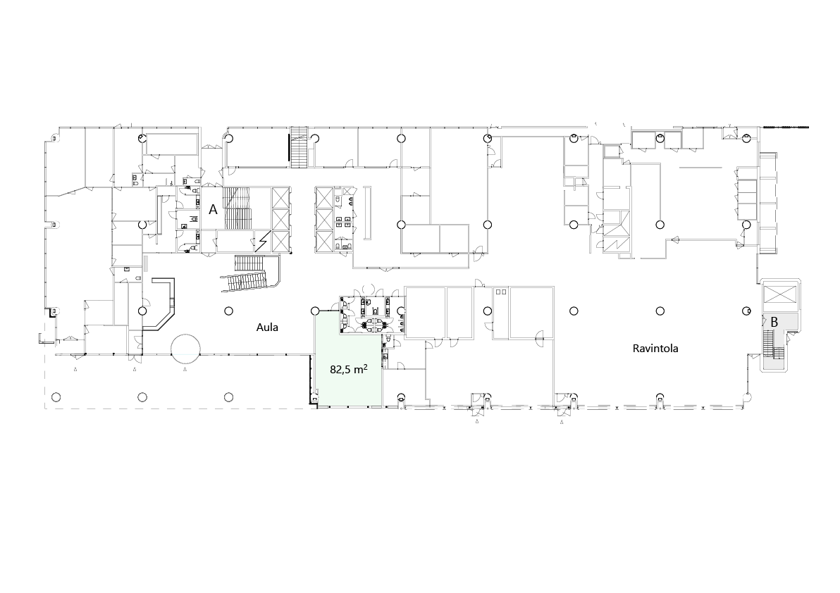
82 m2, katutaso

Katutason liiketila aivan pääaulan kyljessä.

Perustiedot

Muut kulut
  • Sähkö kulutuksen mukaan
  • Aulapalvelu
Vapautuminen

 Tila on heti vapaa.

Lähes kaikkiin tiloihimme tehdään jonkinlaisia muutostöitä vuokralaisen toiveesta ennen sopimuksen alkamista, ja muutostöiden toteutus vie laajuudesta riippuen 2-12 kk. Tyypillisesti sisään pääsee muuttamaan noin 4 kk kuluttua sopimuksen allekirjoituksesta.

Tilan muokattavuus

Kaikki vuokralle tarjottavat tilamme ovat muokattavissa käyttäjän toiveiden mukaiseksi. Tilan katselmuksen ja tarpeidenne huolellisen kartoittamisen jälkeen suunnittelijamme tekee luonnoksen siitä, millaisilla muutoksilla tila soveltuisi teidän käyttöönne. Ensimmäisen luonnoksen kustannuksen maksaa vuokranantaja, eikä se sido vuokralaisehdokasta vielä mihinkään.

Remontin kulut

Tämä on neuvottelukysymys, mutta usein sellaiset muutostyökustannukset, jotka tiloihin olisi tehtävä ”joka tapauksessa” muutti niihin mikä yritys tahansa, maksaa vuokranantaja. Esimerkkejä tällaisista töistä voivat olla pintamateriaalien päivityksen lisäksi esimerkiksi ilmanvaihdon, sähköjen ja valaistuksen perusparannusta ja keittiö-, wc- ja sosiaalitilojen uudistamista. Vuokranantajan tekemä investointi joko sisältyy maksettavaan kuukausivuokraan tai jossain tapauksissa lisätään perusvuokraan erillisenä investointivuokrana.

Jos taas vuokralaisen toiminta tiloissa vaatii joitakin erityisiä, tyypillisestä toimistokäytöstä poikkeavia muutostöitä, vuokranantaja saattaa edellyttää, että vuokralainen maksaa nuo muutostyöt itse. Tällaisia voisivat olla vaikka erityistä lattiakantavuutta, suurta sähkömäärää tai voimakasta jäähdytystä vaativat tilat. Ohjenuorana sellaiset asennukset tai ominaisuudet, joita seuraava tiloja käyttävä yritys ei suurella todennäköisyydellä tule tarvitsemaan, kuuluvat vuokralaisen maksettaviksi.

Kalusteet

 

Tilojen kalustuksen kustannus kuuluu vuokralaiselle, mutta suunnittelijamme auttavat mielellämme niiden hankkimisessa. Voitte tilata sisustussuunnittelijaltamme kalustussuunnitelman ja hankkia kalusteet itse tai halutessanne ulkoistaa myös kilpailutuksen suunnittelijalle.

Säterinportissa on tarjolla myös kalustettuna vuokrattavia tiloja.

Osallistuminen muutokseen

Tilamuutos- ja muuttoprosessiin vuokralainen saa osallistua haluamassaan laajuudessa. Vuokralainen tuntee oman toimintansa ja henkilöstönsä tarpeet parhaiten, joten on hyvä olla mukana keskusteluissa ainakin tilojen sähkö- ja LVI-töitä suunniteltaessa, jotta voidaan varmistaa, että esimerkiksi vuokralaisen käyttämien AV-laitteiden sijainnit tai vesipisteen tarvitsevien kahvikoneen paikat tai muut sopimuksen allekirjoituksen jälkeen mieleen tulleet erikoistoiveet tulevat huomioiduksi suunnittelussa.

Jos mielenkiintoa ja aikaa riittää, osallistua voi hyvinkin aktiivisesti ja jos ei voisi vähempää kiinnostaa, me pidämme kyllä huolta, että asiat etenevät sovitusti.

Mahtavat naapurit

Bloomsville on nimensä mukaisesti kuin pieni kylä keskellä idyllistä ja rakastettua Munkkiniemeä. Kiinteistöstä kodin ovat löytäneet lukuisat hyvinvointiin, terveydenhuoltoon, kasvatukseen ja hoivaan keskittyneet toimijat, mutta Bloomsville ottaa avosylin vastaan yrityksiä ja yhteisöjä kaikilta toimialoilta.

Marek Sound

Livet

Sodexo

Ennen kuin lähdet!

Halusimme vielä kertoa, että olet tervetullut viettämään testipäivän Säterinportin kohteessamme!
Ei kiirettä, ei painetta – tutustu rauhassa olosuhteisiin ja palveluihin.

Kokeile itse, et pety!